工業鋁型材
Aluminum profile
Aluminum profile
聯系APAS / Contact us
- 地址:天津市西青經濟技術開發區賽達國際工業城A3-2.
- 郵箱:lxc@apas.com.cn
- 電話:022-87920088
- 傳真:請聯系網絡管理員
- 郵編:300385
- 咨詢熱線:13702119190(24小時服務熱線)
角鋁型材 / Angle aluminum
產品名稱 / Name
2020角鋁型材
產品描述 / Describe
2020角鋁型材屬于6063-T5系列鋁合金擠壓型材,表面經過噴砂氧化處理,具有很強的抗氧化能力,可以根據技術需求加工成鋁型材緊固連接件,用于鋁型材框架快速組裝;

可以根據需求進行設計加工,提供上門安裝服務;可以根據特殊需求進行鋁型材開模定制。
* 免費提供工業鋁型材選型手冊 →點擊咨詢
![]() |
![]() ![]() ![]() |
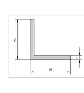
(2020角鋁型材二維參數)
|
規格型號
|
重量kg/m
|
慣性矩
|
慣性矩
|
彎矩
|
彎矩
|
訂貨編號
|
Profile
|
Weight
|
Ix(cm4)
|
Iy(cm4)
|
Wx(cm3)
|
Wy(cm3)
|
Order NO.
|
20×20-T2
|
0.32
|
0.65
|
0.65
|
1.23
|
1.23
|
AC-L2020-T2
|
2020角鋁型材可以用于操作臺臺面封邊或進行加工處理后用于20系列輕型鋁型材框架緊固連接,是較為常用的鋁型材緊固連接配件之一; |

天津艾普斯工業鋁型材股份有限公司
聯系電話:022-87920088
企業傳真:(避免惡意廣告)請聯系該企業網絡管理員
服務熱線:13702119190 (24小時服務熱線)
Q Q:534973906
企業郵箱: lxc@apas.com.cn
企業地址:天津市西青經濟技術開發區賽達國際工業城A3-2
聯系電話:022-87920088
企業傳真:(避免惡意廣告)請聯系該企業網絡管理員
服務熱線:13702119190 (24小時服務熱線)
Q Q:534973906
企業郵箱: lxc@apas.com.cn
企業地址:天津市西青經濟技術開發區賽達國際工業城A3-2

